Skip Ribbon Commands
Skip to main content
Home
OFFICE
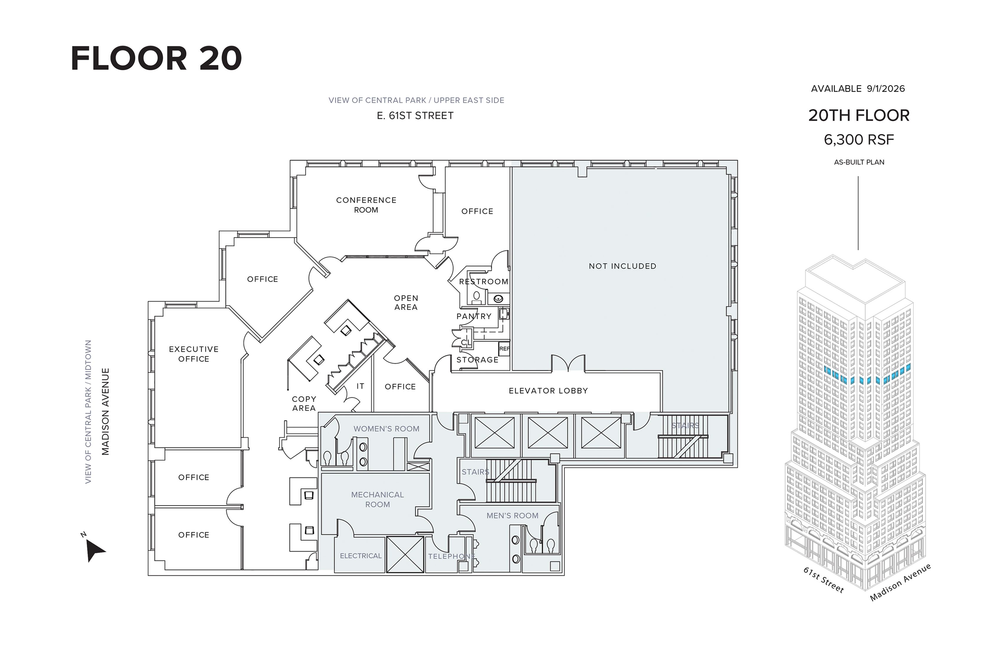
667 Madison Avenue - 20th FL - Suite, New York, New York
Property Info
Rental:
9/1/26
Term:
 
Location & Directions
Loading...
Office 667 Madison Avenue 20th Floor
667 Madison Avenue - 20th FL - Suite
New York
New York
 

Office 667 Madison Avenue 20th Floor

×
Current Availabilities
AddressSq. Ft.Floor PlanAction
667 Madison Avenue - 20th FL - Suite 6,300 View Edit Delete
  Add
Building Profile
Total Square Feet:
273,114
Stories:
25
Transportation:

​​Tenants can choose from a myriad of transportation options.

Comments:

20TH FLOOR - Office Suite - 6,300 SF

CENTRAL PARK VIEWS

• State-of-the-Art Fitness Center and Cardio Room.

• Golf simulator

• Elegant concierge desk attended 24 hours, 7 days a week.

• Six high-speed passenger elevators with custom "Touchless Link" operating panels.

• Multiple telecommunication options.

• Building Characteristics: Soaring 25 stories with 273,114 square feet sheathed with a granite facade enhanced by a decorative limestone trim. A ten-foot tall landmark bronze Statue of Liberty greets visitors at the entrance.



Office 667 Madison Avenue 20th Floor Hartz